URBANISME ET LITTORAL

PROJET MASTER S7

Une ville à 2 pas et à 2 roues

Villeneuve-lès-Maguelone est un village de bord de mer et à proximité de Montpellier. Il bénéficie du cadre méditerranéen, mais subit les contraintes de littoralité : inondation, salinité des sols, embruns. Villeneuve se situant près de la métropole profite de son attractivité mais, en contre-partie, devient ville-dortoir où la voiture est omniprésente.


La promenade de l'école

Notre volonté était de redynamiser l'espace public de ce village pour le rendre plus agréable à vivre. En réaménageant le parvis de l'école pour l'accueil des parents, en reconvertissant les ateliers municipaux en halles gourmandes avec leurs parcs et leur potager pédagogique. Et en revalorisant les accès piétons et cyclistes pour les rendre confortables et agrèables à utiliser au quotidien. Afin d'inciter les habitants à davantage utiliser le vélo ou la marche pour se déplacer.


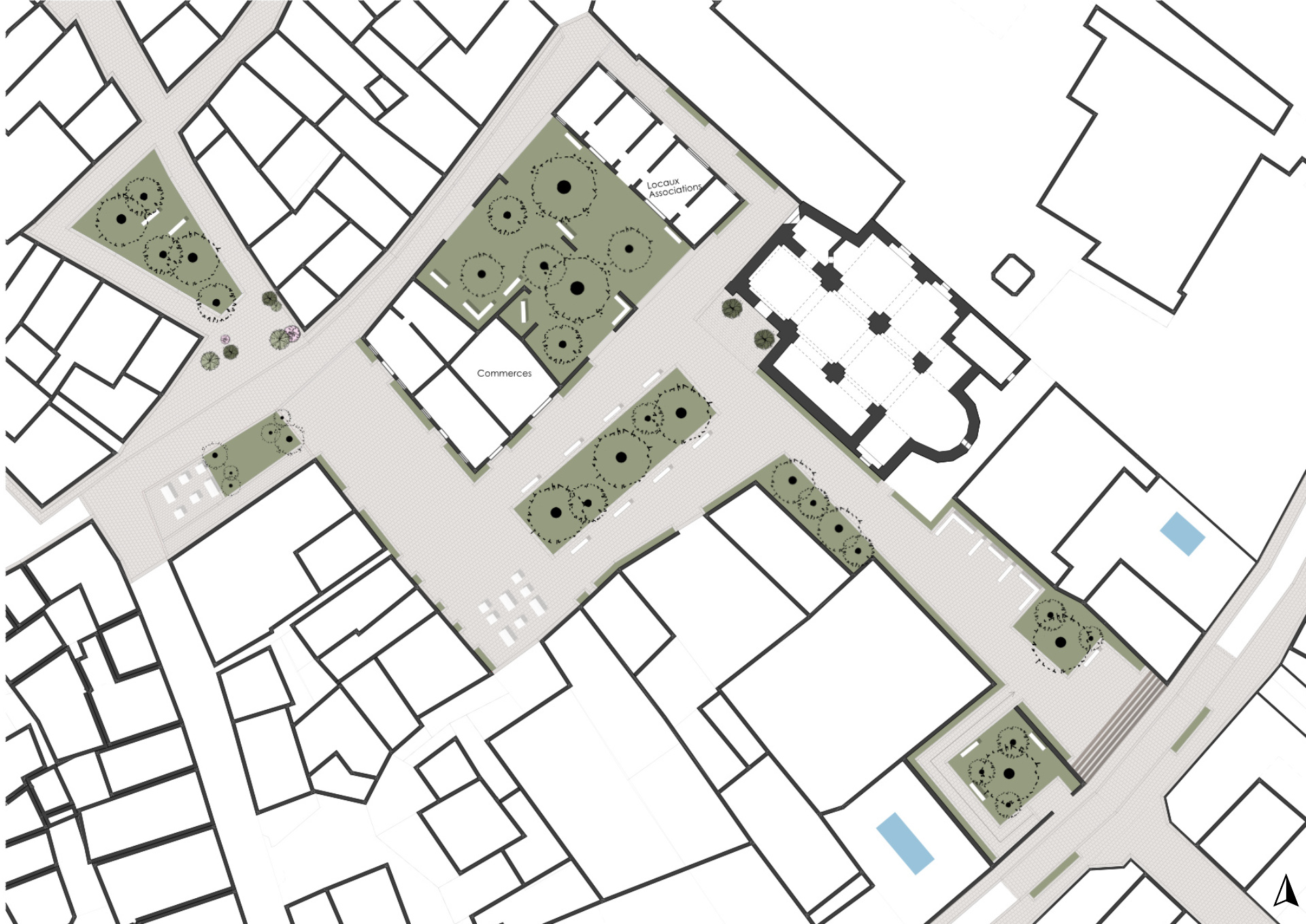
La place de l'Eglise

La voiture a pris une place importante dans le centre historique. Nous avions voulu rendre la place de l'église aux résidents et aux commerçants. En y installant des espaces végétalisés avec de l'ombre et des bancs; en revalorisant les terrasses; et en créant des accès simples et sécurisés pour les piétons et les cyclistes. Nous avons offert aux habitants un nouvel espace de partage et de rencontres, où il fera bon vivre une grande partie de l'année.